Studio für Architektur und Brandschutz
  • Start
  • Leistungen
  • Über mich
  • Kontakt

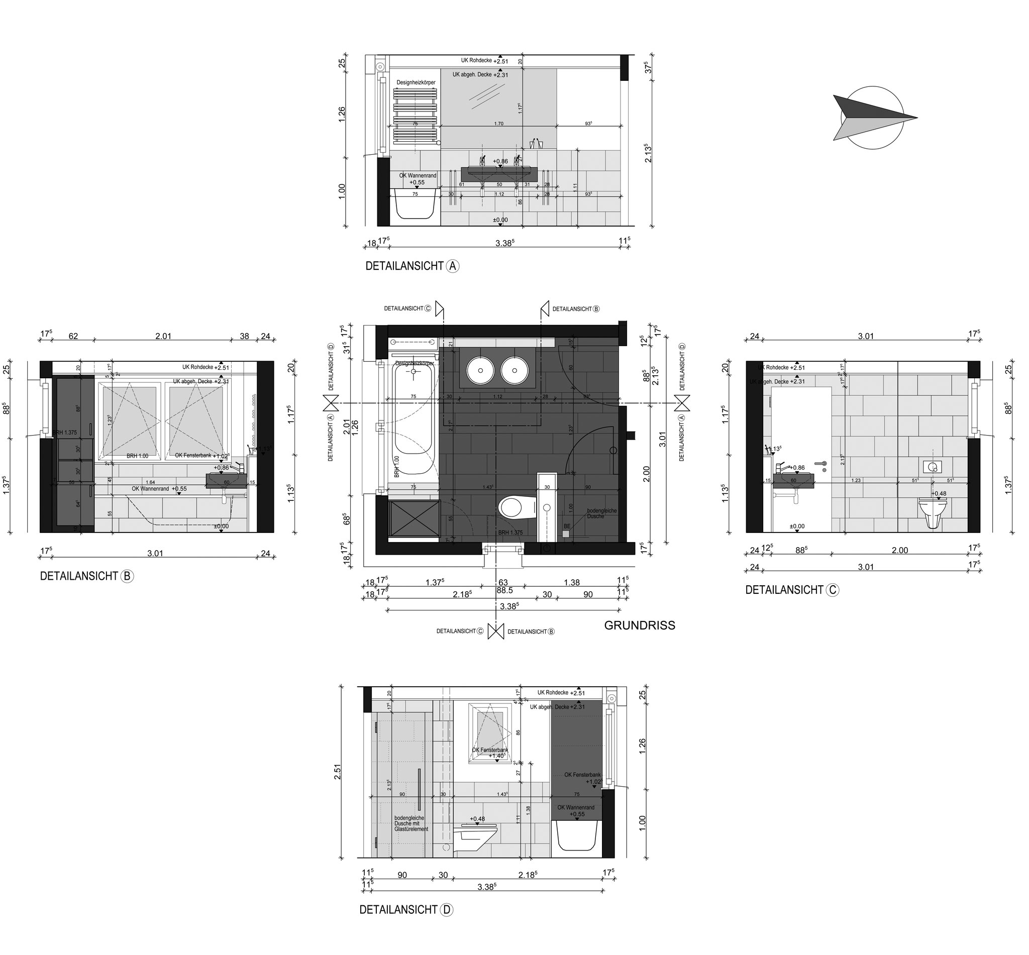
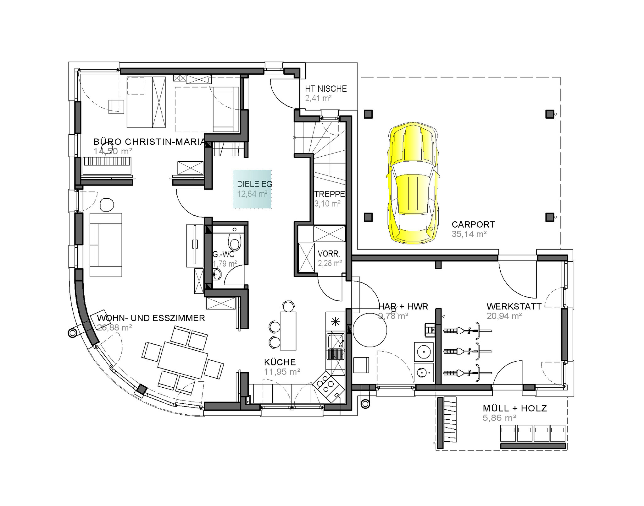
Neubauplanung und Umbauplanungen

 
Auf Wunsch erstellen wir Ihnen die Planung für fast alle Gebäudetypen, egal ob Neubau auf der grünen Wiese oder Umbau mitten im Bestand.

 

Dabei können Sie wählen, welche Planungstiefe Sie haben wollen:

Entwurf, Baugenehmigungsfähigkeit, Ausführungsplanung.

  • Neubauplanung und Umbauplanung
  • Brandschutznachweise
  • Flucht- und Rettungspläne
  • Feuerwehrpläne
  • freie Mitarbeit

Dipl.-Ing. Tobias Leukert

  • freier Architekt
  • Sachverständiger für vorbeugenden Brandschutz (EIPOS)
  • Nachweisberechtigter für Brandschutz (121-20-NB AK LSA und 751183-B-AKH)

Albrechtstraße 14

39590 Tangermünde

      

Tel. / Funk: 01520 - 89 51 736

Mail: architekt-leukert@freenet.de


Impressum | Datenschutz | Sitemap
Anmelden Abmelden | Bearbeiten
  • Start
  • Leistungen
    • Neubauplanung und Umbauplanung
    • Brandschutznachweise
    • Flucht- und Rettungspläne
    • Feuerwehrpläne
    • freie Mitarbeit
  • Über mich
  • Kontakt
zuklappen